詳情
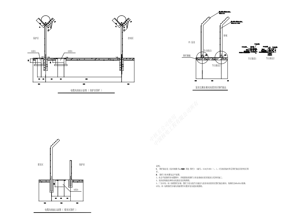
核電圍欄又稱核電實保圍欄、核電站實體保護圍欄、核電站分為控制區、保護區、
要害區三個區域。
且根據防護區域的安全級別不同,應用的防護圍欄形式也有所不同。
1、控制區,核電站控制區圍欄采用單向支臂圍欄。

端柱、角柱、加強柱:采用Q235B級鋼,規格為80*80*3mm長度3.45米,預埋0.9米,柱間距為2.5米,
立柱上焊接六個固定件,用于固定系緊鋼絲,固定件間距為50cm,采用雙涂層防腐工藝,內涂層為金
屬層,平均鋅層不小于280g/㎡,外層為聚酯粉末涂層,厚度不小于0.8mm
中間柱:采用Q235B級鋼,規格為90*50*3mm長度3.45米,預埋0.9米,柱間距為2.5米,立柱上焊接六
個固定件,用于固定系緊鋼絲,固定件間距為50cm,采用雙涂層防腐工藝,內涂層為金屬層,平均鋅
層不小于280g/㎡,外層為聚酯粉末涂層,厚度不小于0.8mm
斜撐:采用Q235B級鋼,規格為L50*5mm長度2.7米,與立柱夾角為30°,安裝于網片內側,通過連接件
用螺栓連接,內涂層為金屬層,平均鋅層不小于280g/㎡,外層為聚酯粉末涂層,厚度不小于0.8mm
網片:編織網采用低碳鋼絲,鋼絲直徑4.0mm,抗拉強度大于500MPa,金屬鍍層不低于60g/㎡,聚酯粉
末涂層厚度大于0.076mm,網孔50*50mm,網片高度2.5米,底部彎曲,頂部垂直分開,端部咬合在一起
,網片上由六根系緊鋼絲與網片用不銹鋼夾固定,固定間距30cm,系緊鋼絲采用包塑φ4mm低碳鋼絲底
部張力鋼絲傳入防腐鋼銷,鋼銷固定混凝土或路面上,每兩根立柱之間用兩個鋼銷,鋼銷間距1米
懸臂支架:每根立柱頂部加裝單向懸臂支架,采用熱軋H型鋼切割成T型,T型鋼規格為50*50*5*7mm,
與立柱垂直夾角45°(拐角柱夾角為55°)長度為80cm(100cm),T型鋼與立柱采用插槽式加螺栓固定,
采用雙涂層防腐工藝,內涂層為金屬層,平均鋅層不小于280g/㎡,外層為聚酯粉末涂層,厚度不小于
0.8mm,每條T型鋼有5條刺鋼絲,鋼絲間距15cm,垂直方向系緊,采用專用不銹鋼夾固定在T型鋼上
刺鋼絲:鋼絲直徑2.5mm,刺絲直徑2.0mm,刺長16mm,刺距76mm,刺線繞股線不少于1.5圈,鋼絲上
鋅量240g/㎡(每條T型鋼有5條刺鋼絲)
2、控制區圍欄、核電站控制區圍欄采用雙支臂圍欄,加裝刀片刺籠。

端柱、角柱、加強柱:采用Q235B級鋼,規格為80*80*3mm長度3.45米,預埋0.9米,柱間距為2.5米,
立柱上焊接六個固定件,用于固定系緊鋼絲,固定件間距為50cm,采用雙涂層防腐工藝,內涂層為金
屬層,平均鋅層不小于280g/㎡,外層為聚酯粉末涂層,厚度不小于0.8mm
中間柱:采用Q235B級鋼,規格為90*50*3mm長度3.45米,預埋0.9米,柱間距為2.5米,立柱上焊接
六個固定件,用于固定系緊鋼絲,固定件間距為50cm,采用雙涂層防腐工藝,內涂層為金屬層,平
均鋅層不小于280g/㎡,外層為聚酯粉末涂層,厚度不小于0.8mm
斜撐:采用Q235B級鋼,規格為L50*5mm長度2.7米,與立柱夾角為30°,安裝于網片內側,通過連
接件用螺栓連接,內涂層為金屬層,平均鋅層不小于280g/㎡,外層為聚酯粉末涂層,厚度不小
于0.8mm
網片:編織網采用低碳鋼絲,鋼絲直徑4.0mm,抗拉強度大于500MPa,金屬鍍層不低于60g/㎡,
聚酯粉末涂層厚度大于0.076mm,網孔50*50mm,網片高度2.5米,底部彎曲,頂部垂直分開,端部
咬合在一起,網片上由六根系緊鋼絲與網片用不銹鋼夾固定,固定間距30cm,系緊鋼絲采用包
塑φ4mm低碳鋼絲底部張力鋼絲傳入防腐鋼銷,鋼銷固定混凝土或路面上,每兩根立柱之間用兩
個鋼銷,鋼銷間距1米
懸臂支架:每根立柱頂部加裝雙向懸臂支架(V型),采用熱軋H型鋼切割成T型,T型鋼規格
為50*50*5*7mm,與立柱垂直夾角45°(拐角柱夾角為55°)長度為80cm(100cm),T型鋼與
立柱采用插槽式加螺栓固定,采用雙涂層防腐工藝,內涂層為金屬層,平均鋅層不小于280g/㎡,
外層為聚酯粉末涂層,厚度不小于0.8mm,每條T型鋼有5條刺鋼絲,鋼絲間距15cm,垂直方向系
緊,采用專用不銹鋼夾固定在T型鋼上
刺鋼絲:鋼絲直徑2.5mm,刺絲直徑2.0mm,刺長16mm,刺距76mm,刺線繞股線不少于1.5圈,
鋼絲上鋅量240g/㎡
刀片刺圈:刀片刺圈為雙螺旋刀片刺圈,刺圈直徑0.7米,螺旋間距0.6米,內鋼絲直徑3.0mm,
平均鍍鋅層不小于250g/㎡,外包不銹鋼刀片,刀片厚度0.6mm,刀長22mm,刀寬15mm,刀片間距34mm
3、要害區、核電站要害區圍欄采用雙層圍欄。

端柱、角柱、加強柱:采用Q235B級鋼,規格為150*150*6mm長度3.45米,預埋0.9米,柱間距
為2米,立柱上焊接六個固定件,用于固定系緊鋼絲,固定件間距為50cm,立柱頂部用鋼板焊死
,采用雙涂層防腐工藝,內涂層為金屬層,平均鋅層不小于280g/㎡,外層為聚酯粉末涂層,厚
度不小于0.8mm
中間柱:采用Q235B級鋼,規格為90*50*3mm長度3.45米,預埋0.9米,柱間距為2.5米,立柱上
焊接六個固定件,用于固定系緊鋼絲,固定件間距為50cm,采用雙涂層防腐工藝,內涂層為金
屬層,平均鋅層不小于280g/㎡,外層為聚酯粉末涂層,厚度不小于0.8mm
斜撐:采用Q235B級鋼,規格為L70*6mm長度2.7米,與立柱夾角為30°,安裝于網片內側,通
過連接件用螺栓連接,內涂層為金屬層,平均鋅層不小于280g/㎡,外層為聚酯粉末涂層,厚
度不小于0.8mm
延伸臂:每根立柱頂部向外彎曲,彎曲規格與立柱一直,端柱、角柱、加強柱與垂直方向夾
角為45°長度為80cm,拐角柱與垂直方向夾角為55°,長度為100cm,每根延伸臂焊接五個
刺繩鉤,間距為15cm,防腐要求與立柱一致,內涂層為金屬層,平均鋅層不小于280g/㎡,
外層為聚酯粉末涂層,厚度不小于0.8mm
網片:編織網采用低碳鋼絲,鋼絲直徑4.0mm,抗拉強度大于500MPa,金屬鍍層不低于60g/㎡,
聚酯粉末涂層厚度大于0.076mm,網孔50*50mm,網片高度2.5米,底部彎曲,頂部垂直分開,
端部咬合在一起,網片上由六根系緊鋼絲與網片用不銹鋼夾固定,固定間距30cm,系緊鋼絲
采用包塑φ4mm低碳鋼絲底部張力鋼絲傳入防腐鋼銷,鋼銷固定混凝土或路面上,每兩根立
柱之間用兩個鋼銷,鋼銷間距1米
思固爾圍欄從事區域安全防護行業15年,具有豐富的核電圍欄生產經驗。